Gallery: Casa em Guararema, a small wooden house in Brazil | Cabana Arquitetos

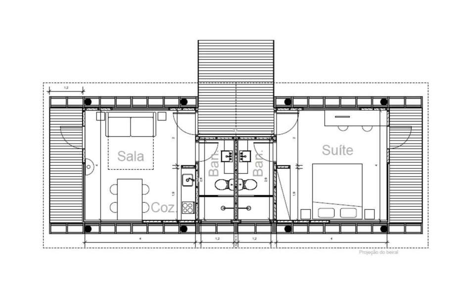
Casa em Guararema is a small wooden house in Brazil perched on eucalyptus poles. It has one bedroom in roughly 460 sq ft. | www.facebook.com/SmallHouseBliss

floor plan