Gallery: The Polygon Studio | Jeffery S. Poss and WORKUS

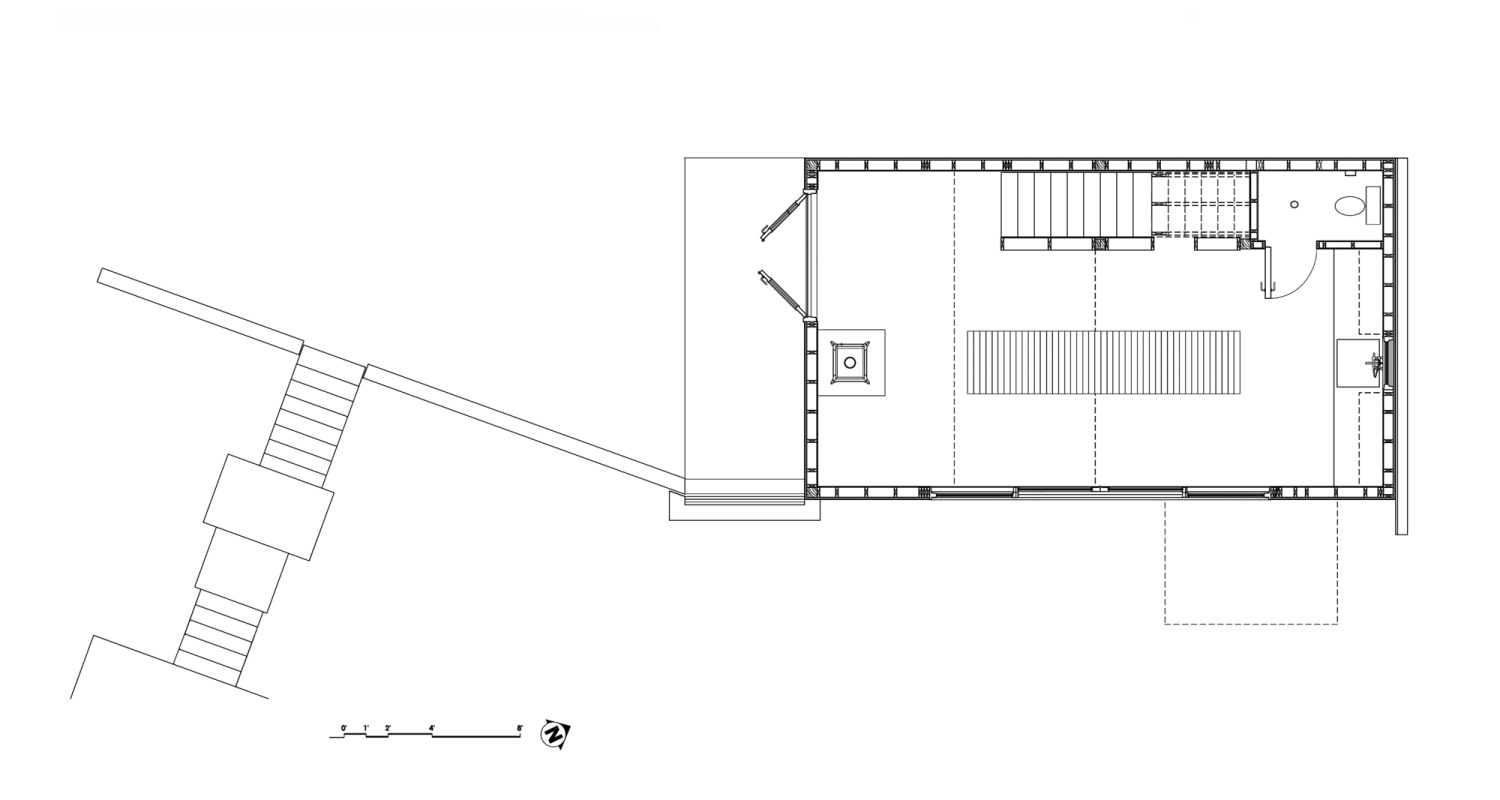
The Polygon Studio, a sculpture studio and guesthouse with a zigzagging roof. It has 409 sq ft on the ground floor plus a loft bedroom. | www.facebook.com/SmallHouseBliss

ground floor plan