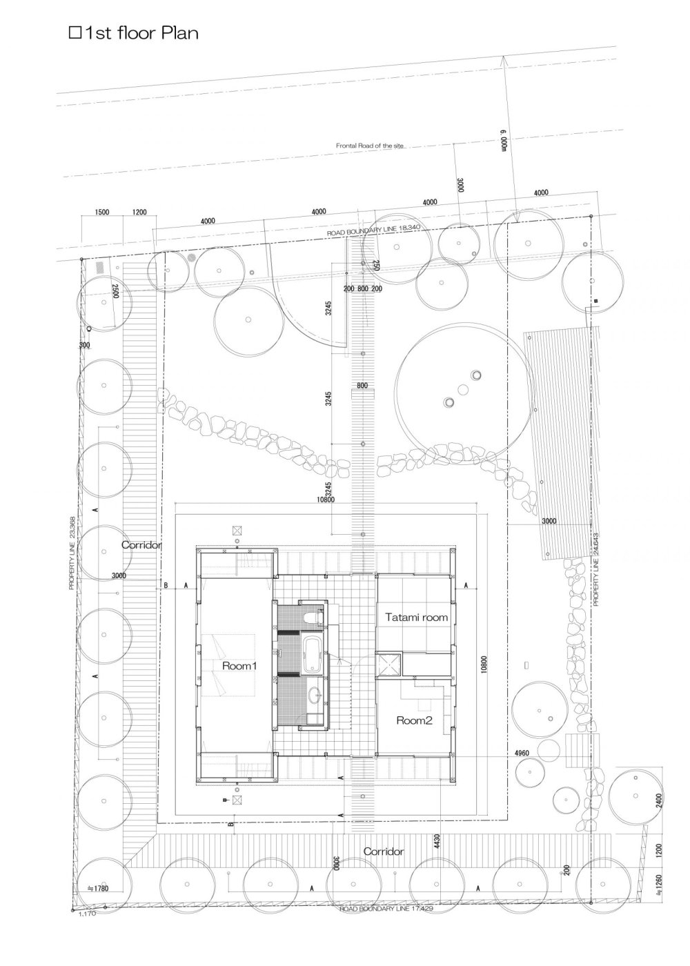
lower floor plan
Δ
Enter your email address to receive notifications of new posts by email. Your email will never be shared or used for anything else.
Email Address:
Follow
Join our Facebook community!