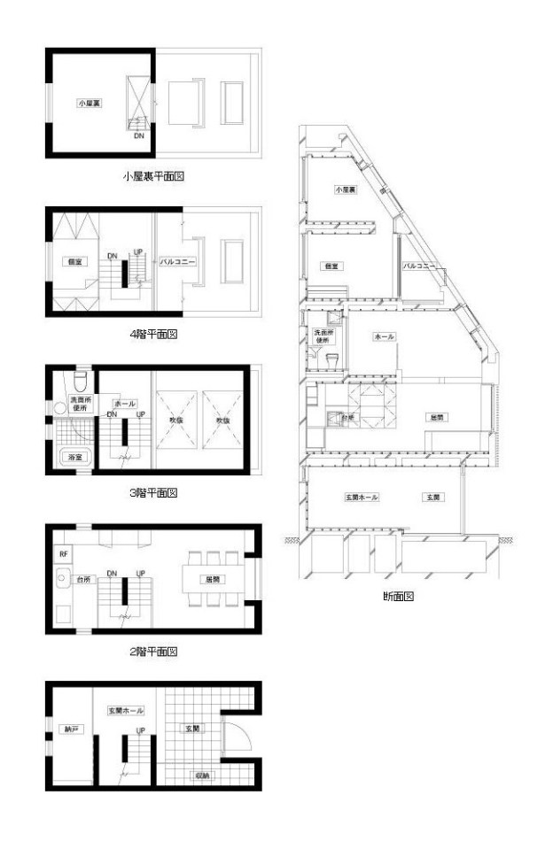
Gallery: “Seven”, a small house built on a parking spot | APOLLO Architects

"Seven", a multilevel urban house built on land previously used as a parking spot. It has one bedroom in 735 sq ft. | www.facebook.com/SmallHouseBliss

floor plans