Gallery: A small house for Ecuador | Velasco Roldan and Hevia Antuña

A small house in Ecuador built with sustainable materials and a green roof. It has one bedroom in 524 sq ft. | www.facebook.com/SmallHouseBliss

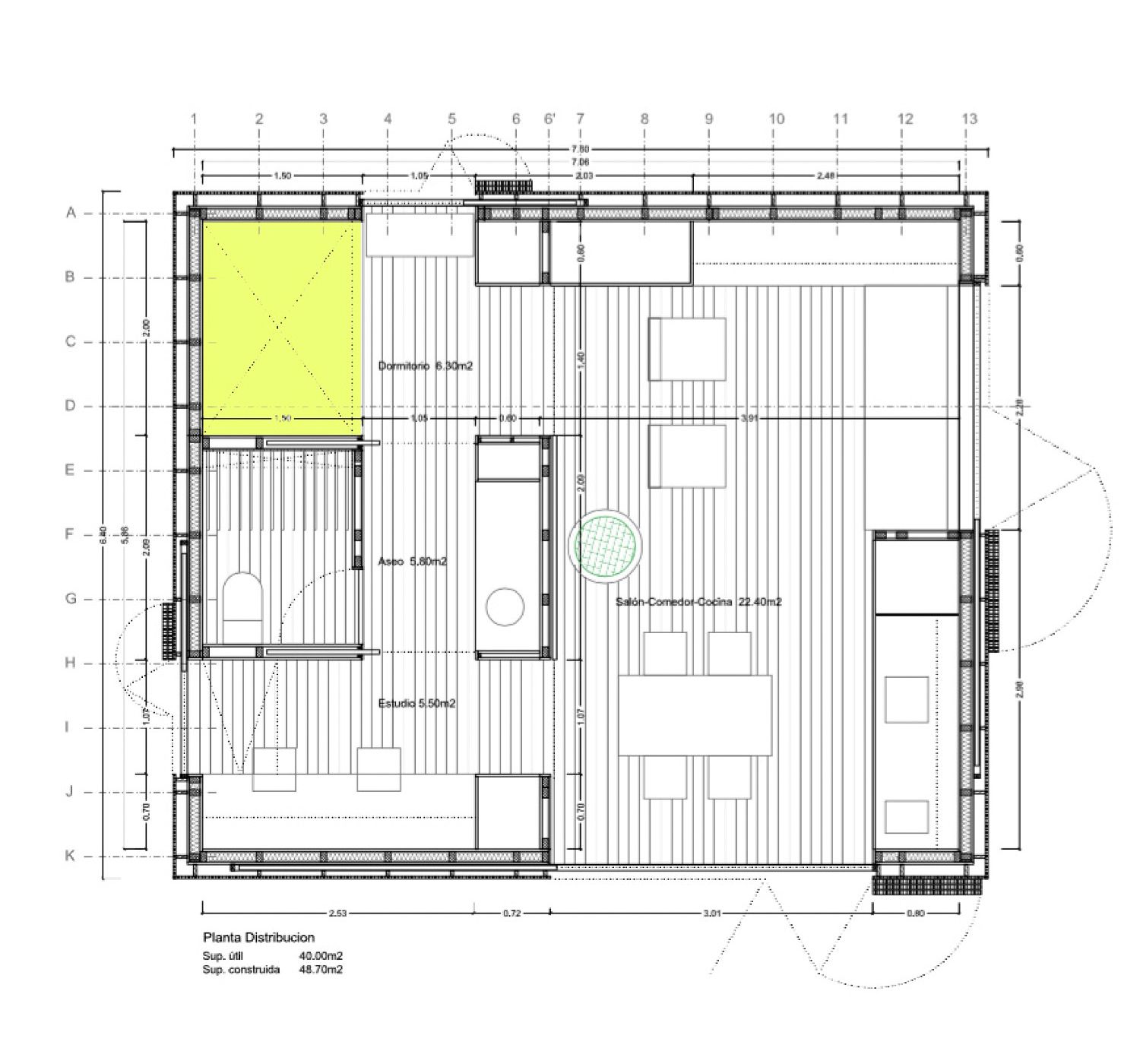
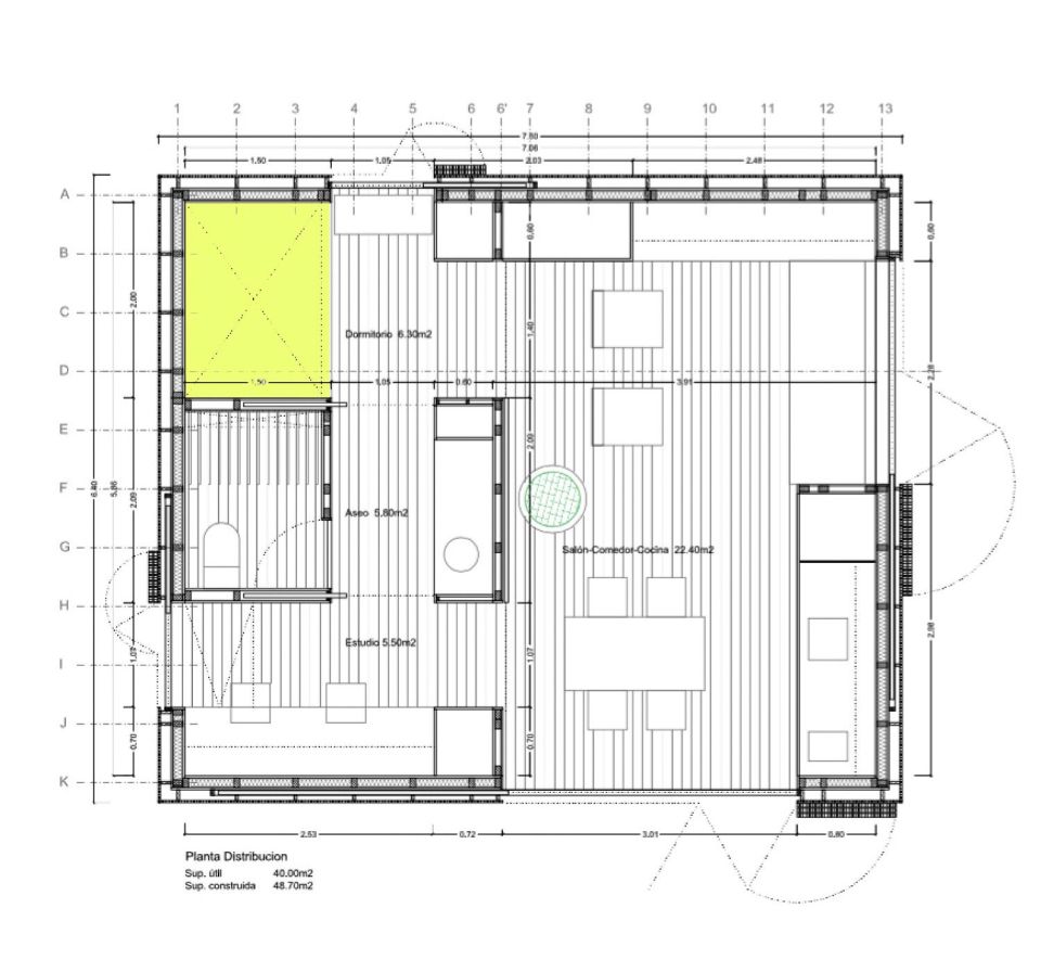
floor plan