Gallery: A tiny cabin compound in an old quarry | GO Logic

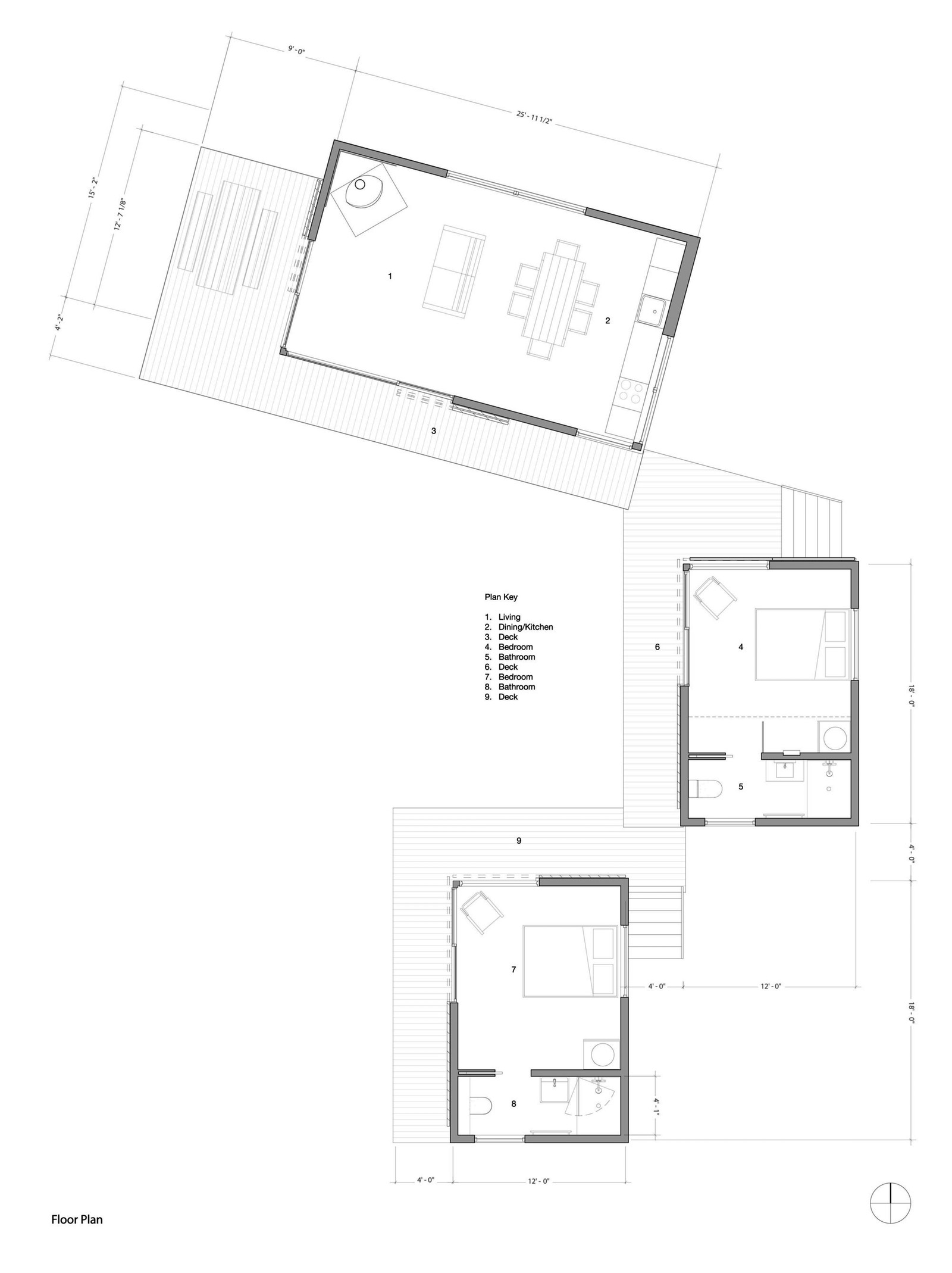
A trio of tiny cabins forms a seasonal vacation retreat in an old quarry. One cabin is the living/dining/kitchen pavilion, the other two are sleeping cabins. | www.facebook.com/SmallHouseBliss

cabin floor plan