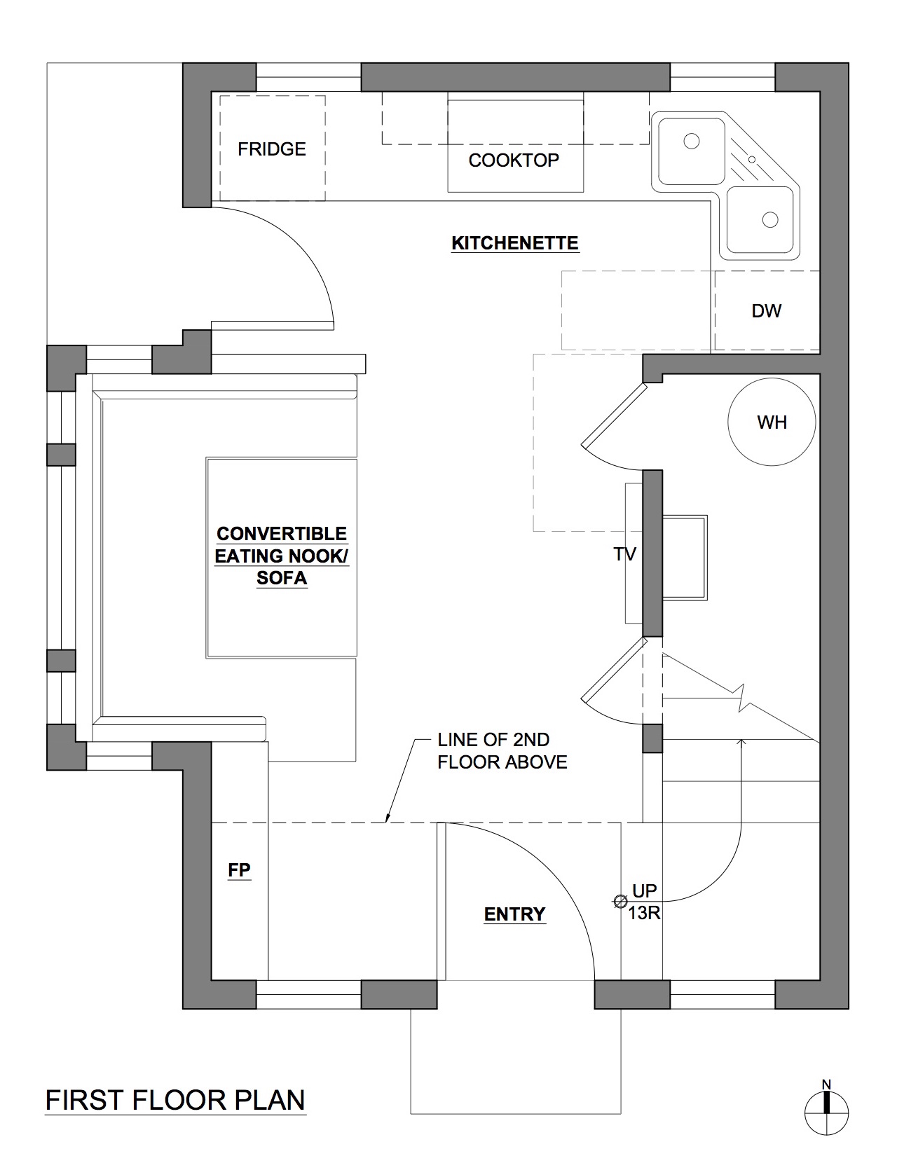
Gallery: Compact guest cottage in Portland | Dyer Studio

This tiny 2-storey guest cottage has one bedroom in 342 sq ft. | www.facebook.com/SmallHouseBliss

lower floor plan