Gallery: A low-impact modern cabin in Sweden | Schlyter / Gezelius

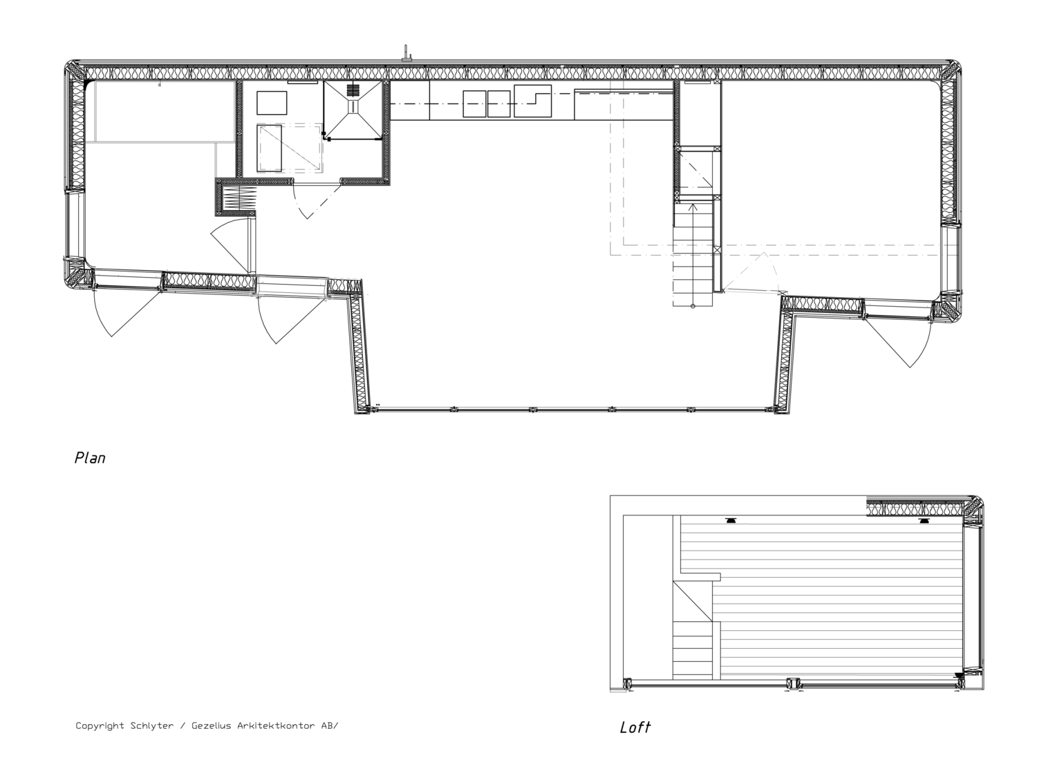
This low-impact modern cabin in Sweden has two bedrooms and a loft in 646 sq ft. | www.facebook.com/SmallHouseBliss

cabin floor plan