cottage floor plan
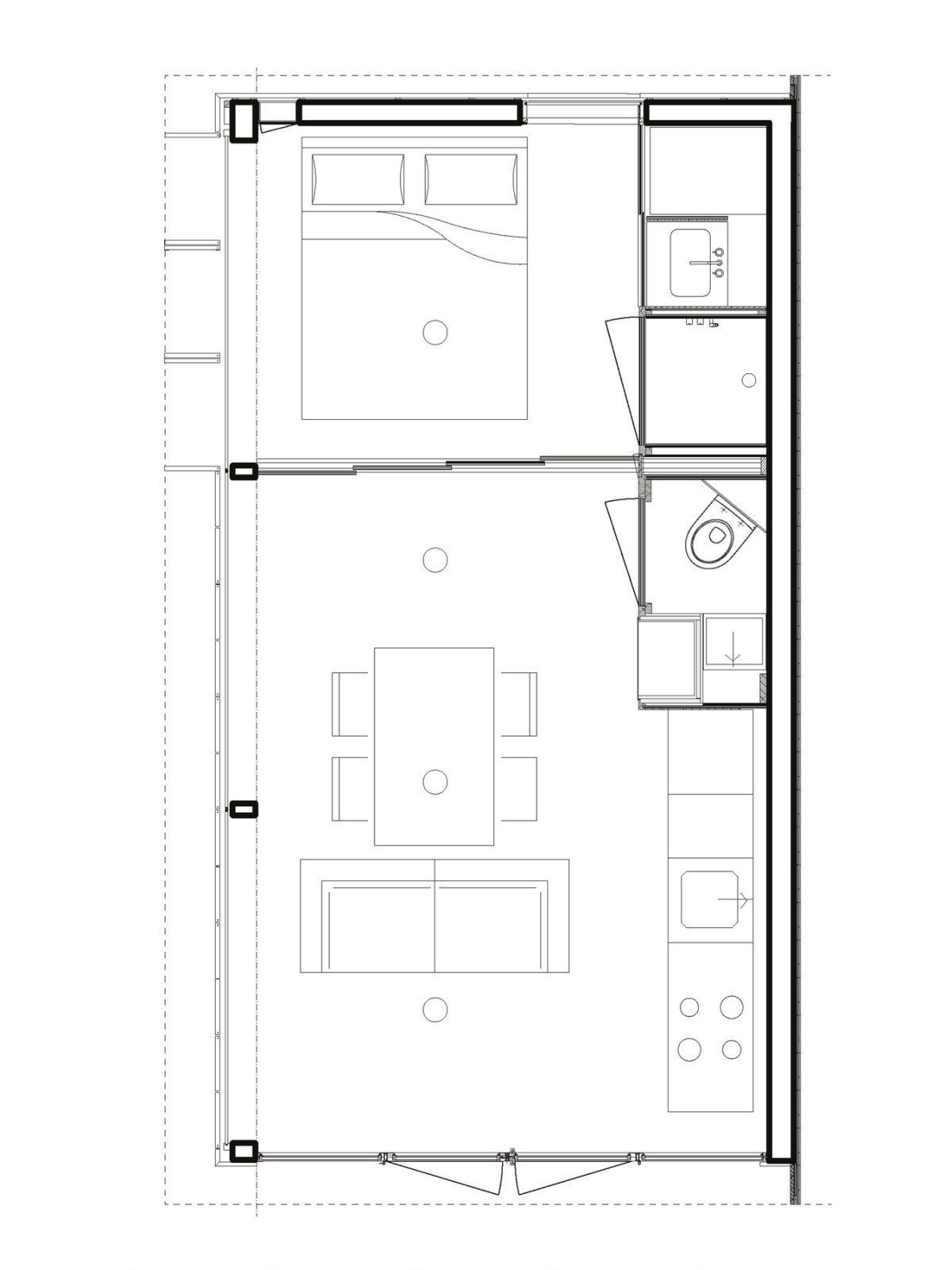
Wow, great distribution plan. Good bathroom option. open space with these shutters. love it.
Δ
Enter your email address to receive notifications of new posts by email. Your email will never be shared or used for anything else.
Email Address:
Follow
Join our Facebook community!
Wow, great distribution plan. Good bathroom option. open space with these shutters. love it.