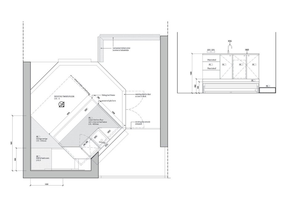
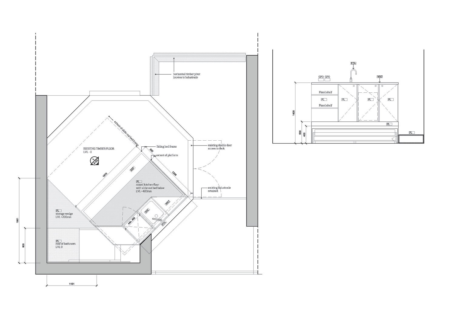
Gallery: The Tardis, a tiny tower house | Edwards Moore Architects

The "Tardis", a tiny tower house built within an existing backyard structure. | www.facebook.com/SmallHouseBliss