Gallery: A stone outbuilding transformed into a small house | Bruno Erpicum

A stone outbuilding became a small house with the addition of a steel and glass pavilion. | www.facebook.com/SmallHouseBliss

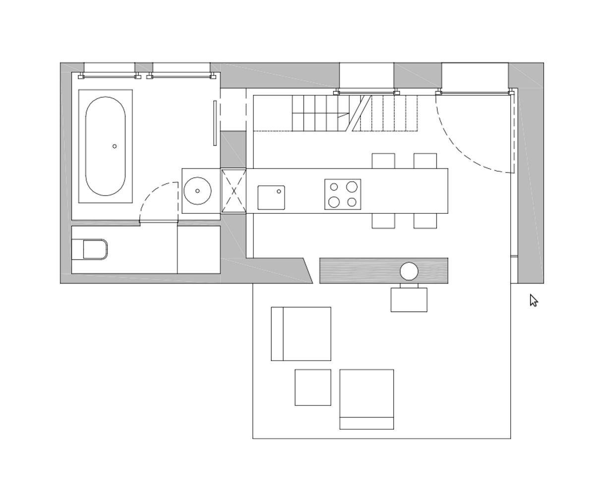
lower floor plan