Gallery: Magnolia Tree Lane House | Lanefab

at 1000 × 418 in Magnolia Tree Lane House | Lanefab
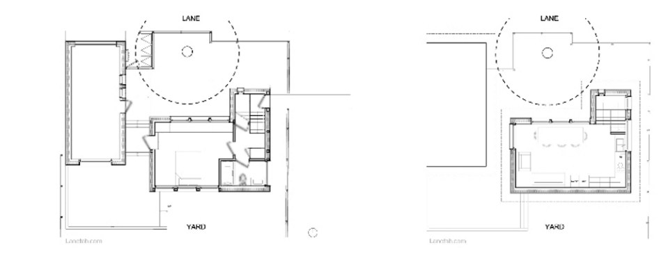
Magnolia Tree Lane House, a stylish new laneway house, has a reverse floor plan with 1 bedroom in 670 sq ft. | www.facebook.com/SmallHouseBliss

floor plans