Gallery: A gingerbread house in the forest | Atelier ST

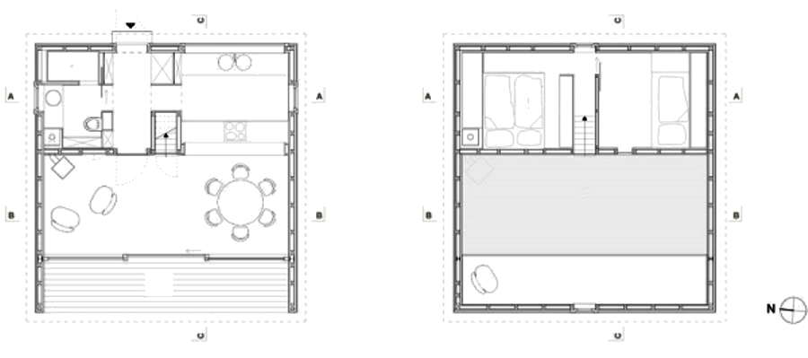
A small "gingerbread house" in the forest. The 667 sq ft cottage has a loft divided into two sleeping spaces. | www.facebook.com/SmallHouseBliss

floor plans