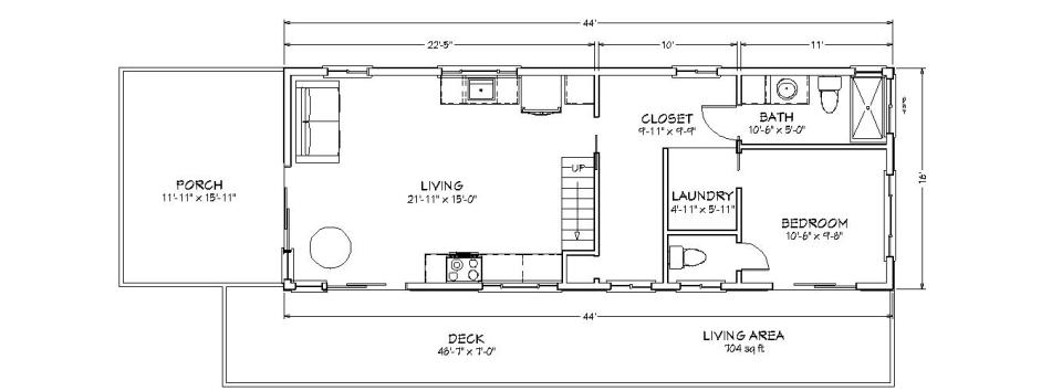
Love the simplicity of the structure, the passive solar considerations. BUT there seem to be some awkward aspects of the layout. In particular, the two walls of the kitchen are so far apart! Too many steps between sink and stove, and I keep picturing carrying food, dirty pots and pans, etc., back and forth from one side to the other. Hard to tell from the floor plan but there seems to be a lot of wasted space in the “closet” area between living and bedroom. Seems like that could be the south side entry, allowing more flexibility in the great room.
Love the simplicity of the structure, the passive solar considerations. BUT there seem to be some awkward aspects of the layout. In particular, the two walls of the kitchen are so far apart! Too many steps between sink and stove, and I keep picturing carrying food, dirty pots and pans, etc., back and forth from one side to the other. Hard to tell from the floor plan but there seems to be a lot of wasted space in the “closet” area between living and bedroom. Seems like that could be the south side entry, allowing more flexibility in the great room.