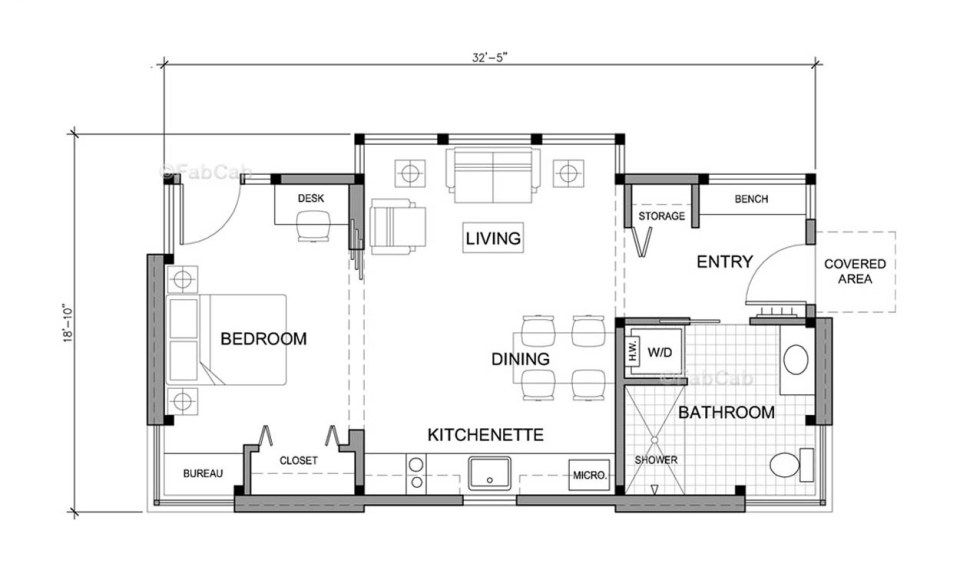
nice floor plan and gorgeous finishes within for a weekend place. there is a gorgeous view out the large windows in the living area, yet the couch is facing the kitchen. I am not fond of plans that have the only lounge seating facing the kitchen and no comfortable place to watch the tv. I would much rather have my couch facing the view and a tv where I could see it comfortably.
nice floor plan and gorgeous finishes within for a weekend place. there is a gorgeous view out the large windows in the living area, yet the couch is facing the kitchen. I am not fond of plans that have the only lounge seating facing the kitchen and no comfortable place to watch the tv. I would much rather have my couch facing the view and a tv where I could see it comfortably.