Gallery: A small family house in Copenhagen | Sigurd Larsen

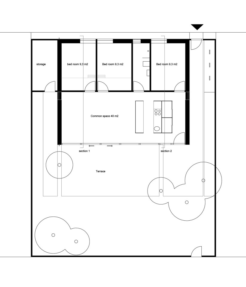
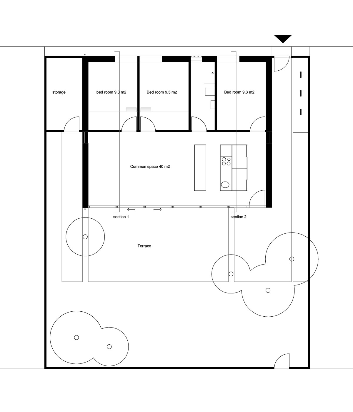
This small family house in Copenhagen has an economical design providing 3 bedrooms in 861 sq ft. | www.facebook.com/SmallHouseBliss

floor plan