Gallery: Charred Cabin | DRAA

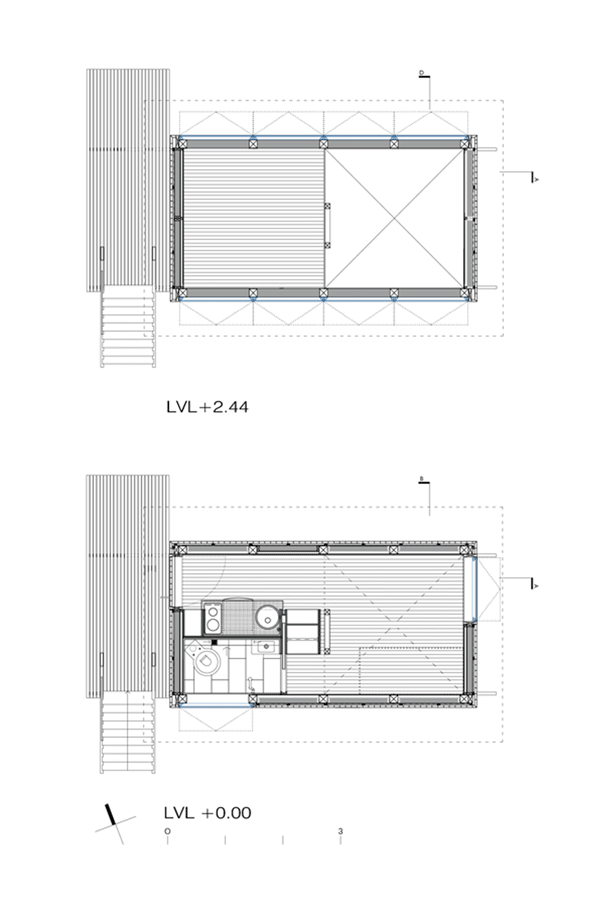
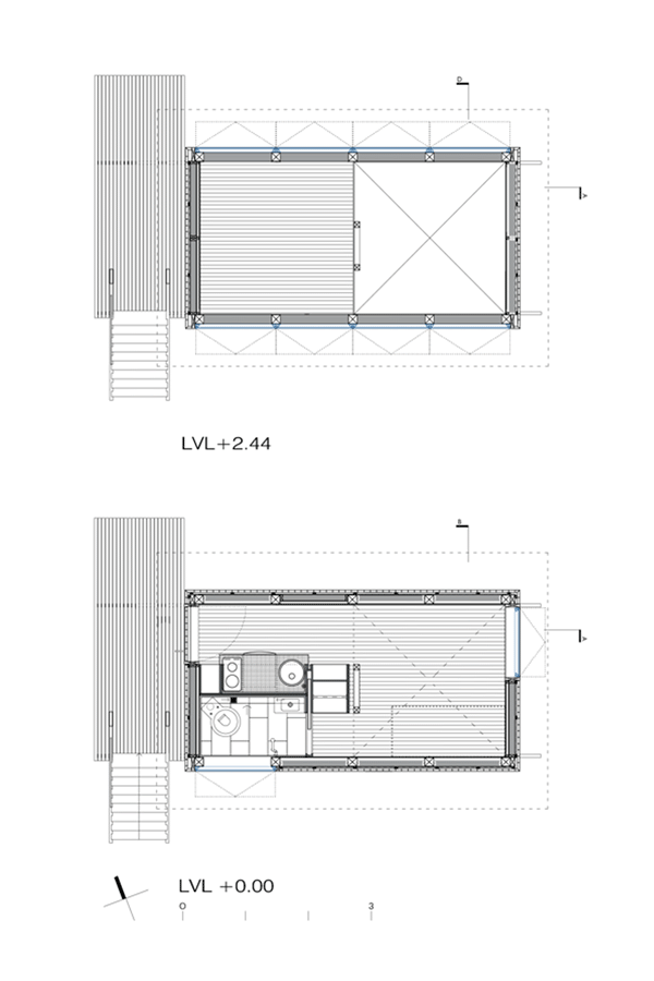
A small cabin in Chile designed as "a place to eat, sleep and read for two" and built for just $15,000. The studio cabin has a 161 sq ft footprint. | www.facebook.com/SmallHouseBliss

cabin floor plans