Gallery: Eagle Point Cabin | Prentiss Architects

at 792 × 612 in Eagle Point Cabin | Prentiss Architects
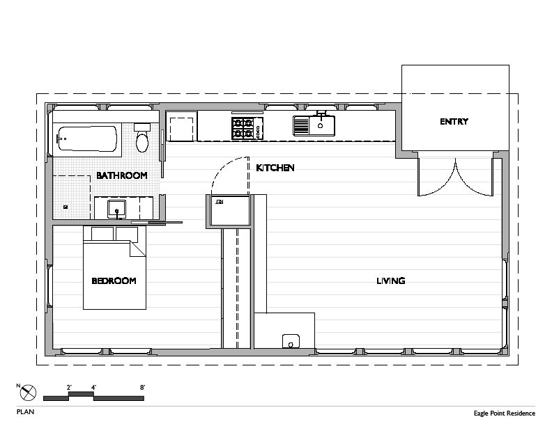
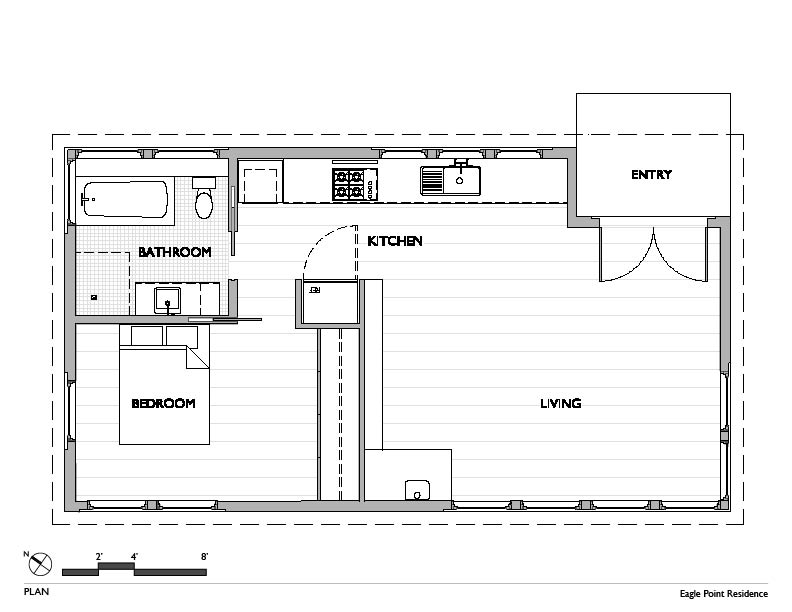
With a sod roof and weathered cedar siding, Eagle Point cabin blends with the San Juan Island landscape. It has 1 bedroom in 688 sq ft. | www.facebook.com/SmallHouseBliss

cabin floor plan