Gallery: The Nest | a21studio

at 2000 × 1000 in The Nest | a21studio
This small house in Vietnam has its ground floor living space open to the outdoors. It will eventually be covered by a screen of climbing plants. | www.facebook.com/SmallHouseBliss

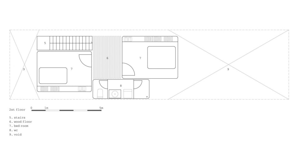
upper floor plan