Gallery: A small house that maximizes family time | Tetsuo Kondo Architects

Boxy on the outside but extremely open on the inside, this small family house has 3 open bedrooms in 964 sq ft. | www.facebook.com/SmallHouseBliss

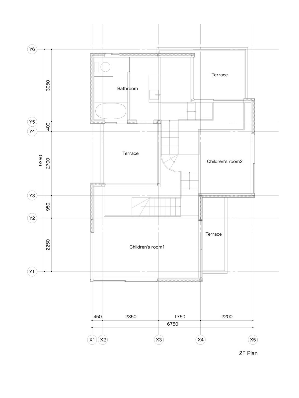
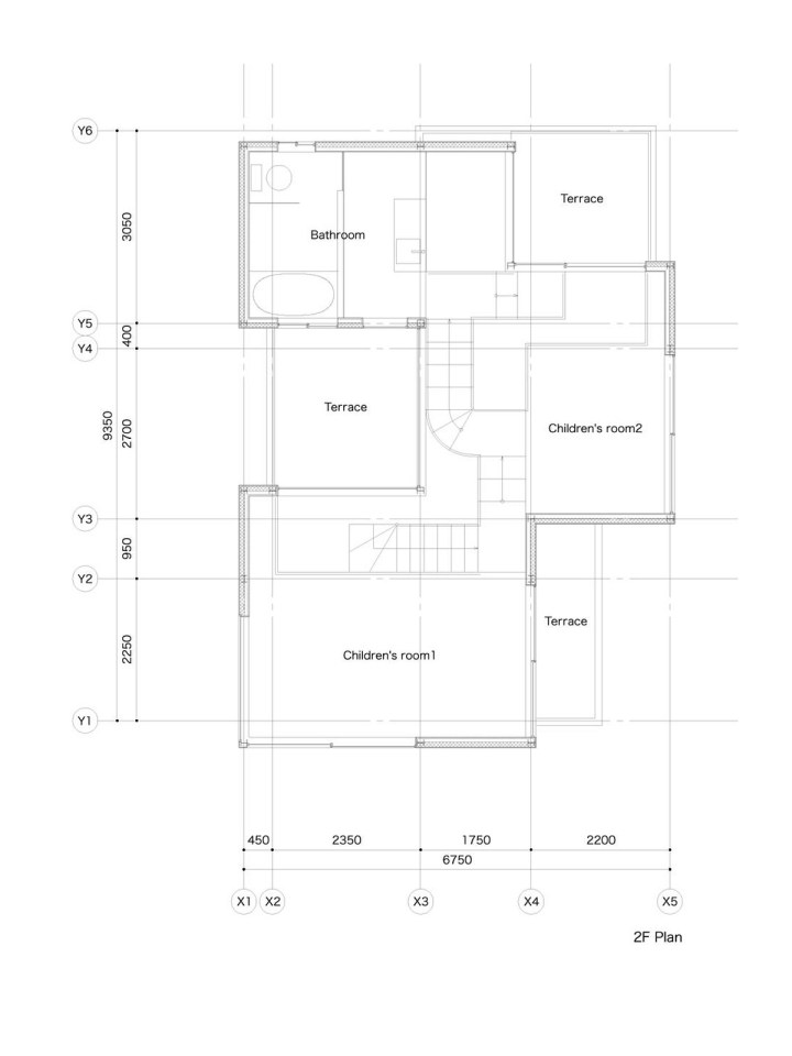
upper floor plan