Gallery: A small home in Slovakia based on rural folk houses | JRKVC

A small home in Slovakia based on rural folk houses. It has 2 bedrooms and a loft in 915 sq ft. | www.facebook.com/SmallHouseBliss

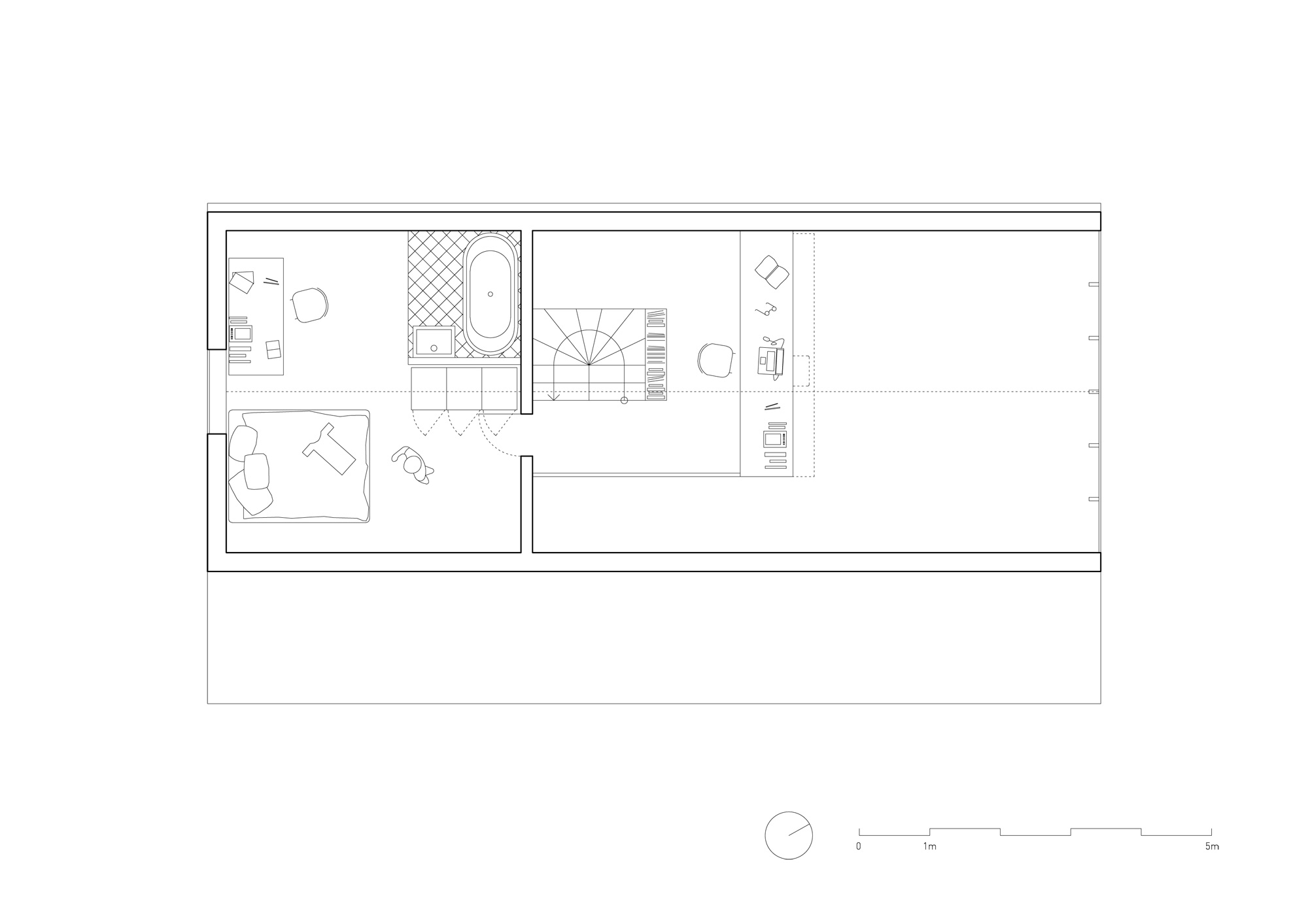
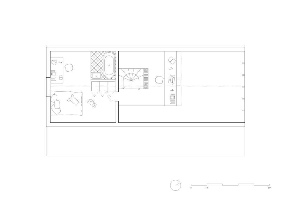
floor plan