Gallery: A modest light-filled home in rural Japan | ALTS Design Office

This modest single-level home in rural Japan has 2 bedrooms in 768 sq ft. | www.facebook.com/SmallHouseBliss

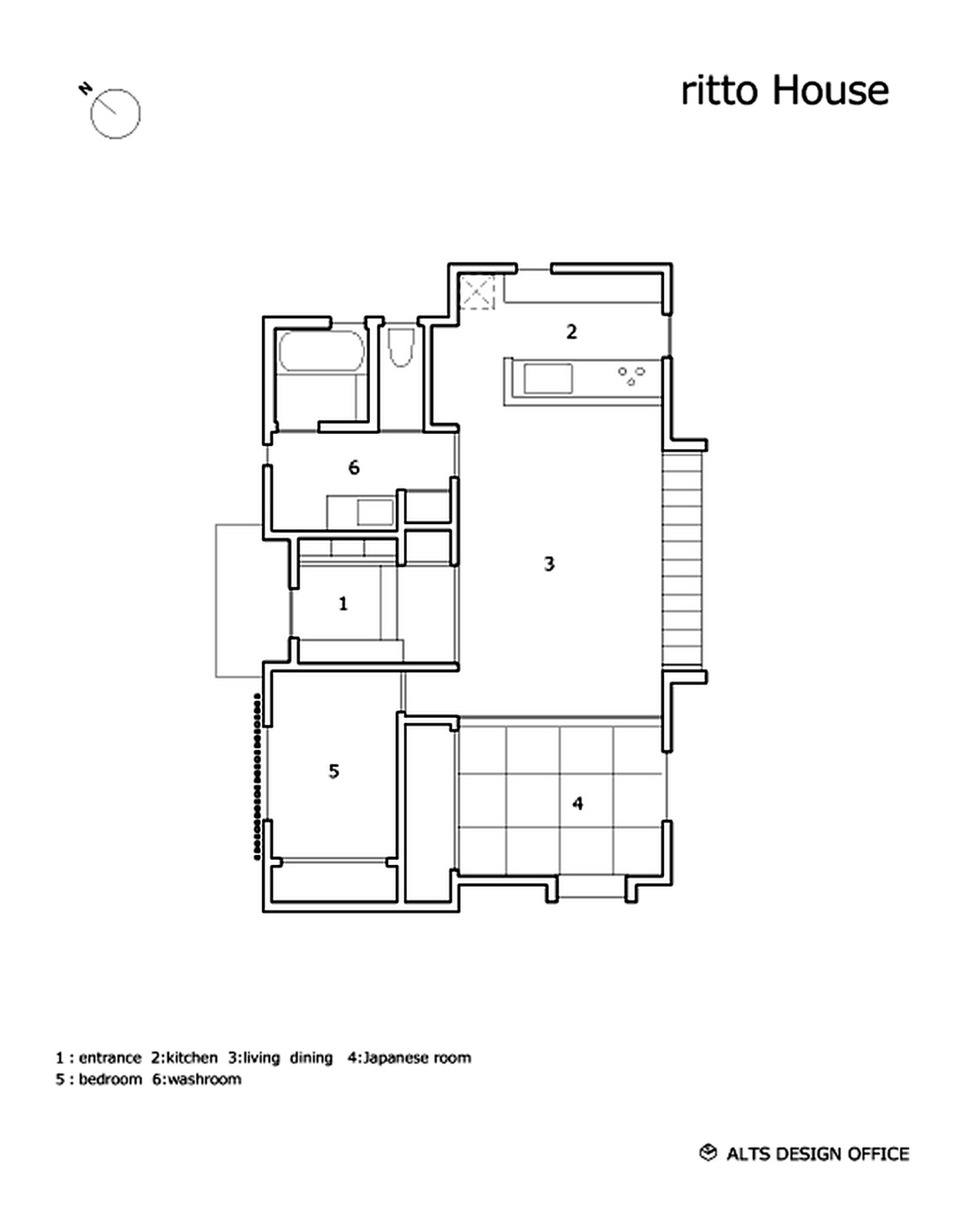
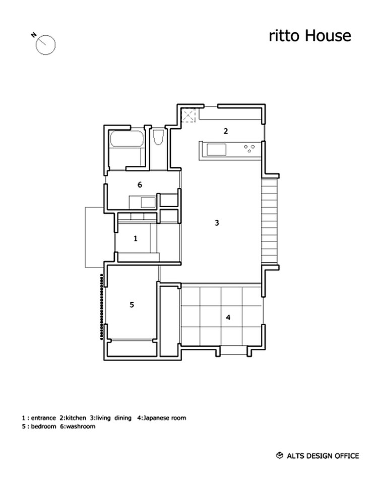
floor plan