Gallery: Summerhouse Skåne, a renovated farmhouse | LASC Studio

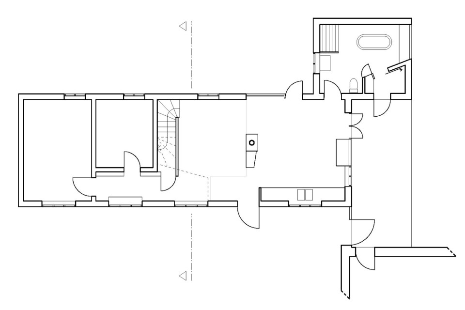
An abandoned farmhouse in Sweden became a family's summerhouse with 3 bedrooms plus a loft in 1,130 sq ft. | www.facebook.com/SmallHouseBliss

floor plan