Gallery: A small alpine cabin from an old granary | Savioz Fabrizzi Architectes

An old granary in a tiny Swiss hamlet was converted into this alpine cabin. It has 2 bedrooms in roughly 500 sq ft. | www.facebook.com/SmallHouseBliss

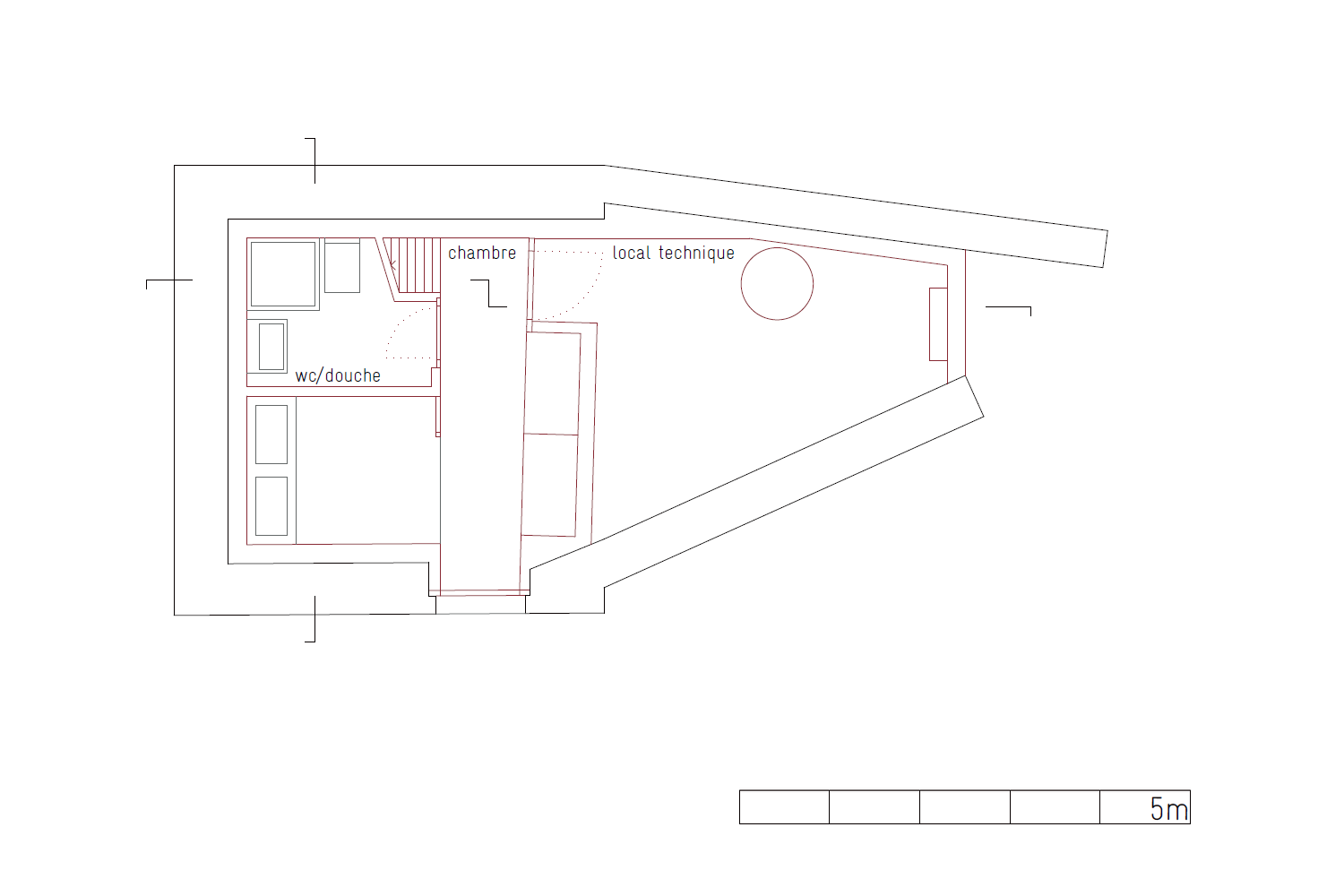
basement floor plan