Gallery: A small and simple house for a retired couple | Studio GAON

This "small and simple house" for a retired couple has about 500 sq ft of inside living space plus a large porch. | www.facebook.com/SmallHouseBliss

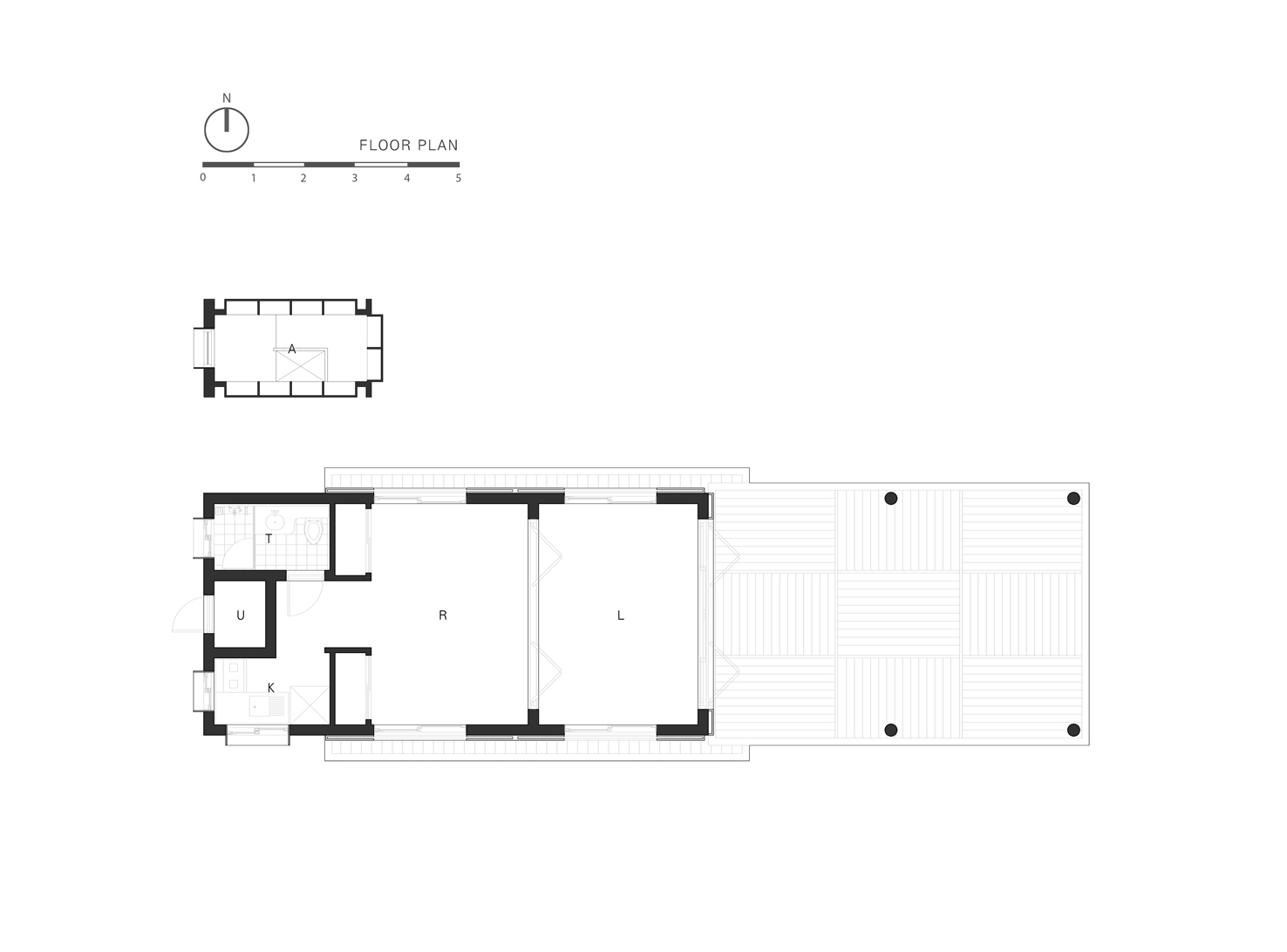
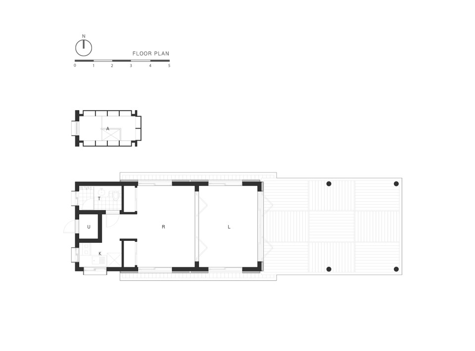
floor plans