Image Navigation

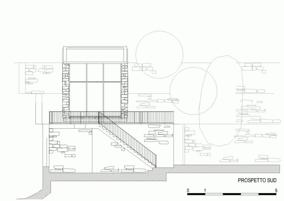
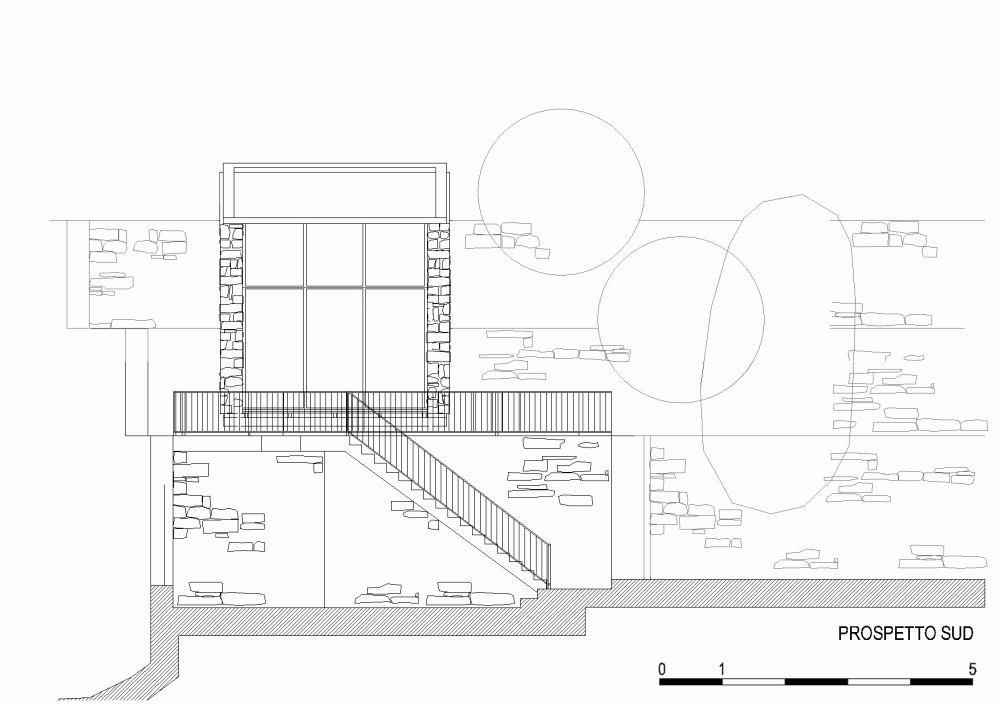
Gallery: Tre Livelli, a studio dwelling with a stepped floor plan | Studioata

A 377 sq ft studio retreat in Italy with a stepped floor plan to follow the terraced site. | www.facebook.com/SmallHouseBliss