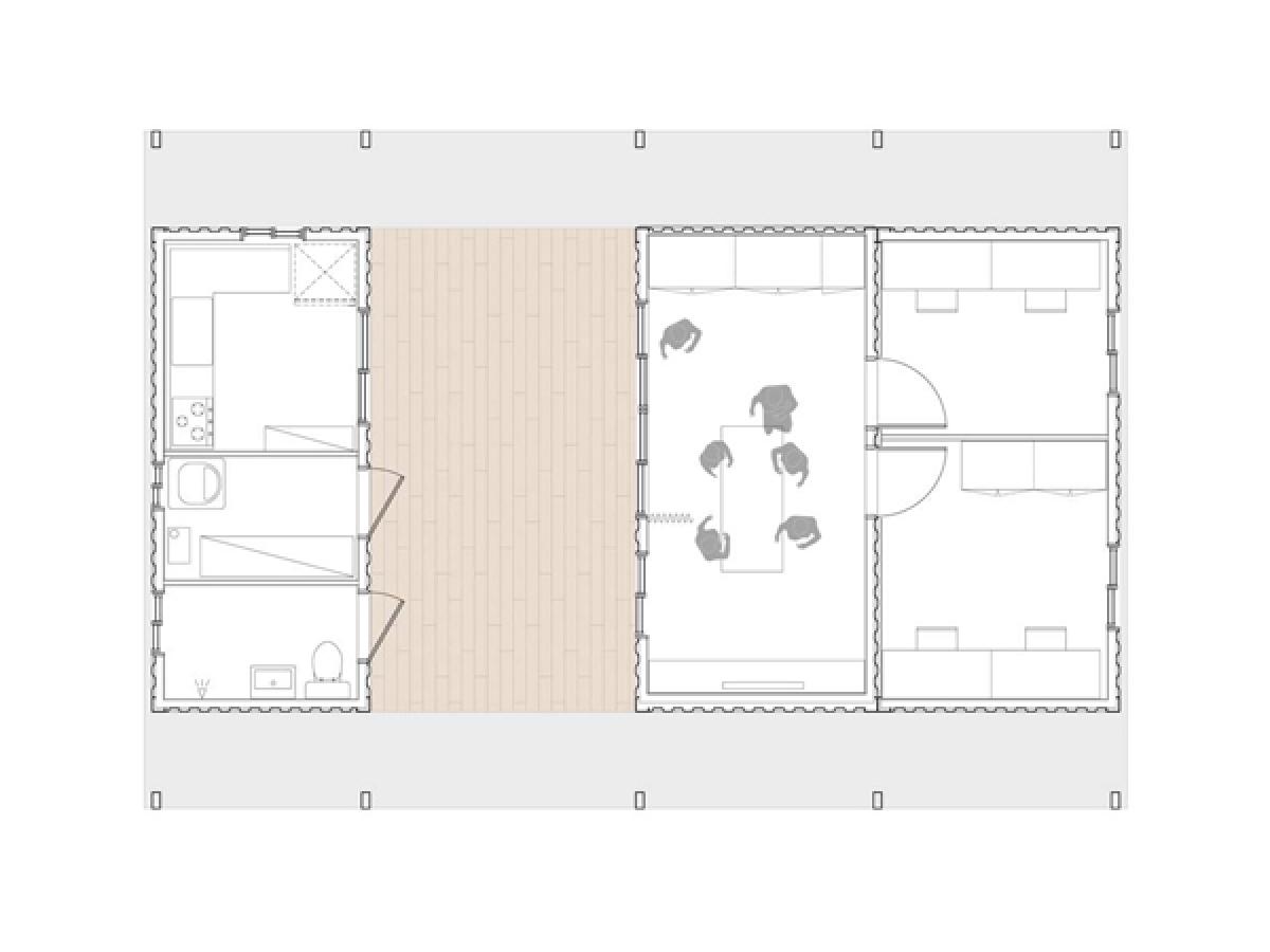
Gallery: An ultra-low-cost container house for a family | JYA-RCHITECTS

This low-cost shipping container house is covered by a tent-like polycarbonate structure to create semi-outdoor spaces between and around the containers. | www.facebook.com/SmallHouseBliss

floor plan