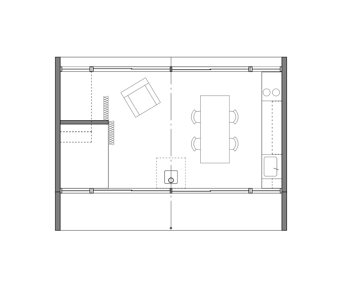
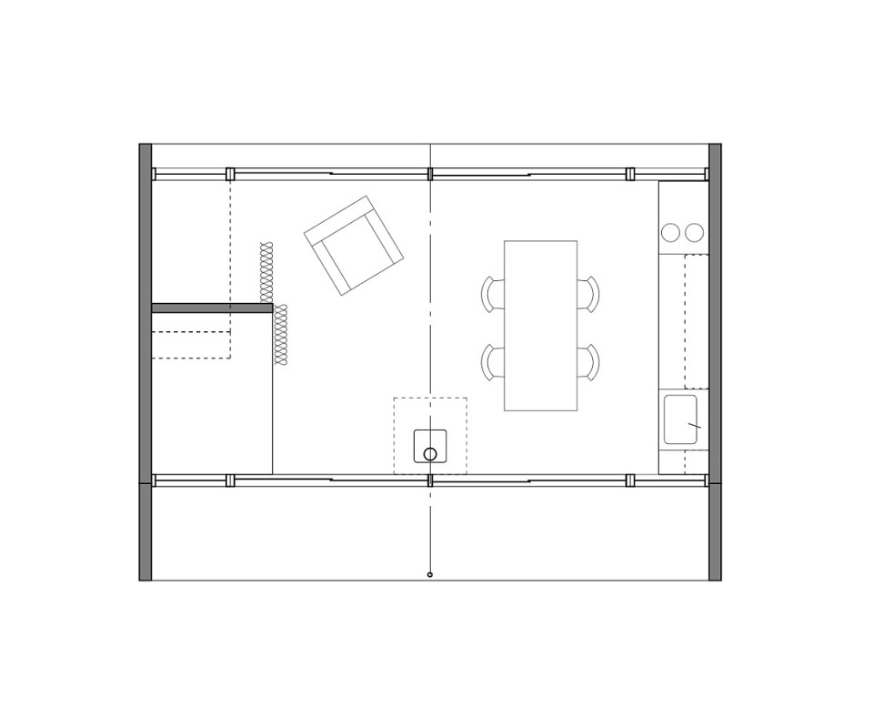
Gallery: The Arado weeHouse, a modern prefab cabin | Alchemy Architects

The Arado weeHouse, a modern prefab cabin with 336 sq ft, was the original weeHouse by Alchemy Architects | www.facebook.com/SmallHouseBliss

cabin floor plan