Gallery: Casa Rio Bonito, a modern cabin in the Brazilian rainforest | Carla Juaçaba

Casa Rio Bonito, a modern cabin in the Brazilian rainforest, has 1 bedroom in 753 sq ft | www.facebook.com/SmallHouseBliss

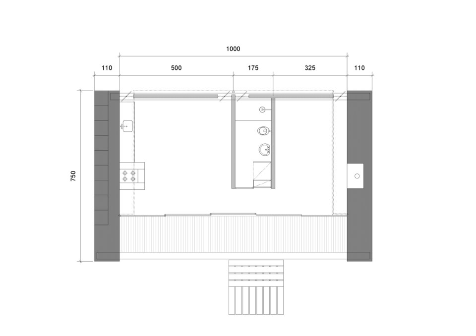
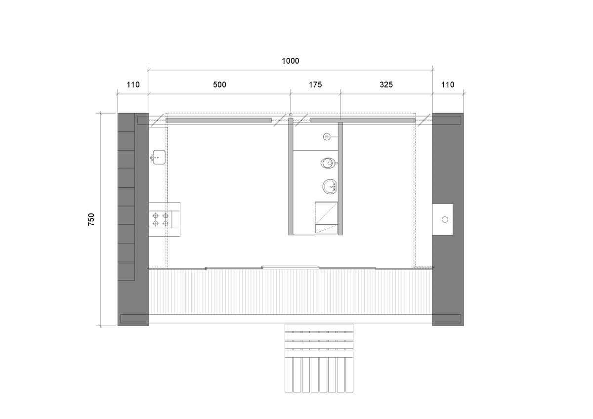
floor plan