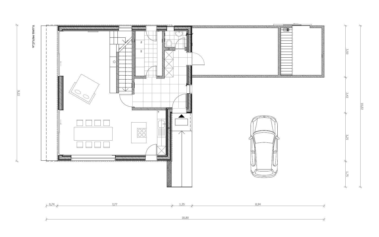
Gallery: A compact and sustainable home for a growing family | Biro Gašperič

A compact home for a young family. The child's room can be divided into two small bedrooms as the family grows. | www.facebook.com/SmallHouseBliss

lower floor plan