Gallery: Danchi Hutch by Yoshihiro Yamamoto Architects

at 975 × 500 in Danchi Hutch by Yoshihiro Yamamoto Architects
Danchi Hutch by Yoshihiro Yamamoto Architects | www.facebook.com/SmallHouseBliss

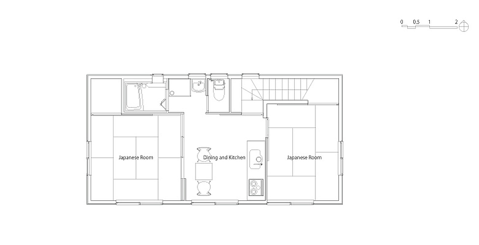
upper floor plan