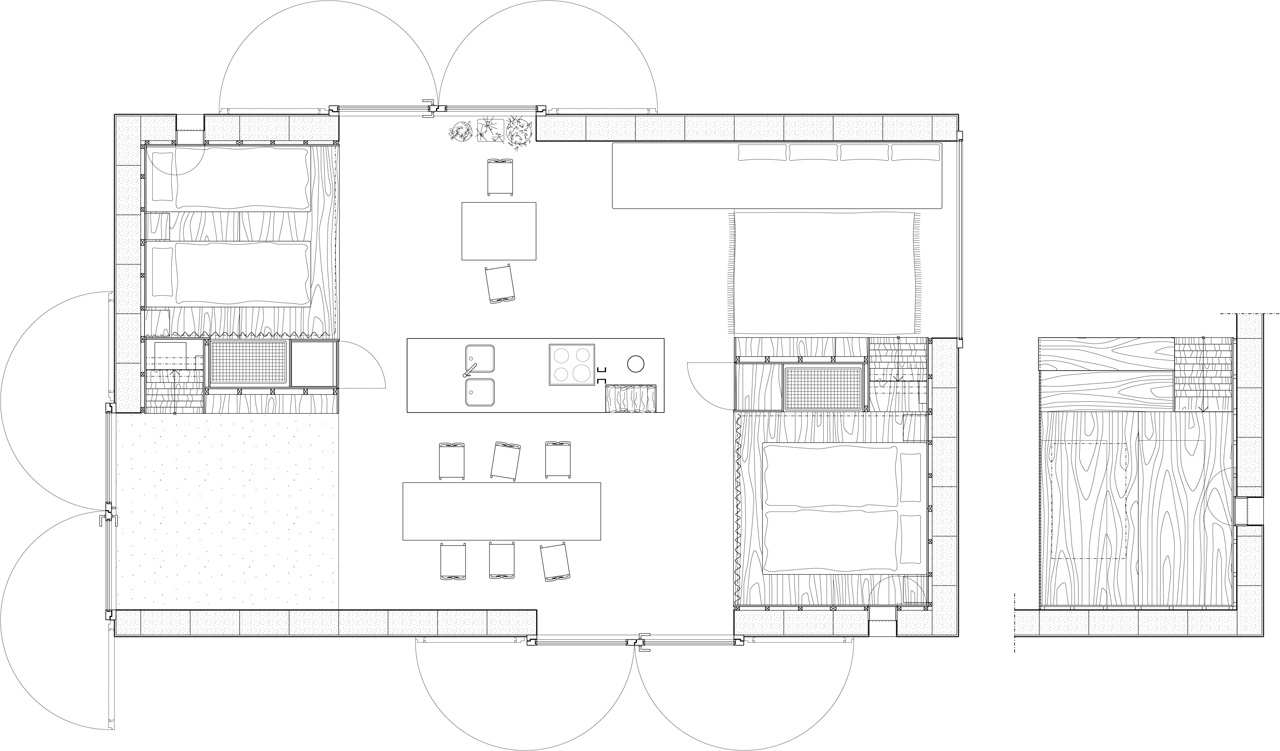
Gallery: Hamra, a barn-like summer house in Sweden | DinellJohansson

This small summer house in Sweden was inspired by local barns. It has an open interior with two sleeping spaces in 689 sq ft. Straightforward design and simple materials kept the cost down. | www.facebook.com/SmallHouseBliss

floor plan