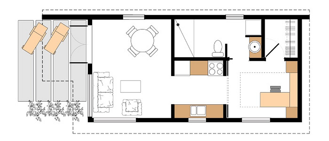
floor plan
my future house awaits
is the bathroom wheelchair ready?
I’d like to know the length, width, height and cost
Δ
Enter your email address to receive notifications of new posts by email. Your email will never be shared or used for anything else.
Email Address:
Follow
Join our Facebook community!
my future house awaits
is the bathroom wheelchair ready?
I’d like to know the length, width, height and cost