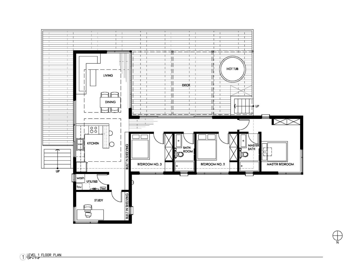
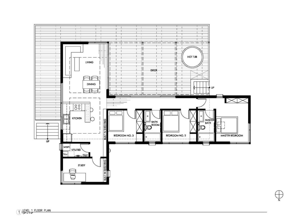
floor plan
I love this house.
love it!!
what is the price of that house…..
Δ
Enter your email address to receive notifications of new posts by email. Your email will never be shared or used for anything else.
Email Address:
Follow
Join our Facebook community!
I love this house.
love it!!
what is the price of that house…..