Gallery: Otio, a small stone cottage by Sebastian Nagy

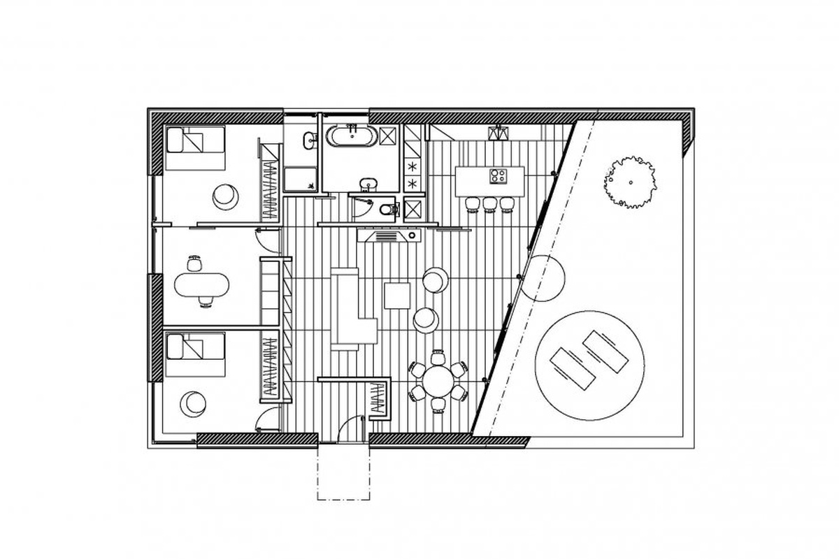
floor plan of Otio, a small stone cottage by Sebastian Nagy

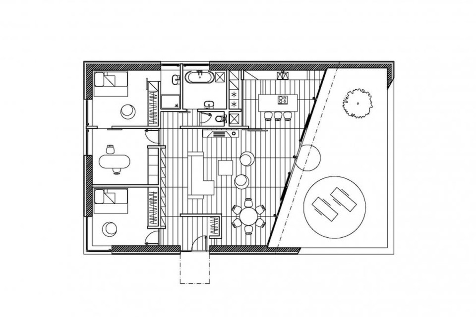
floor plan