Gallery: House in Ujinahigashi | MAKER

at 1500 × 1000 in House in Ujinahigashi | MAKER
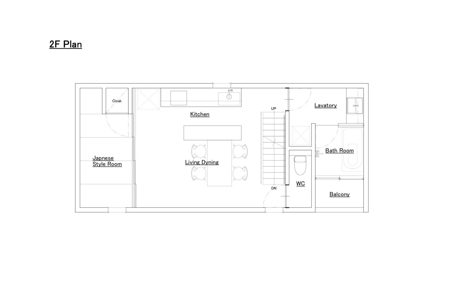
With neighbors close by and no good views, this small house has few windows. Instead, a huge skylight floods the living space with daylight. The house has two bedrooms and a loft in 807 sq ft. | www.facebook.com/SmallHouseBliss

floor plan