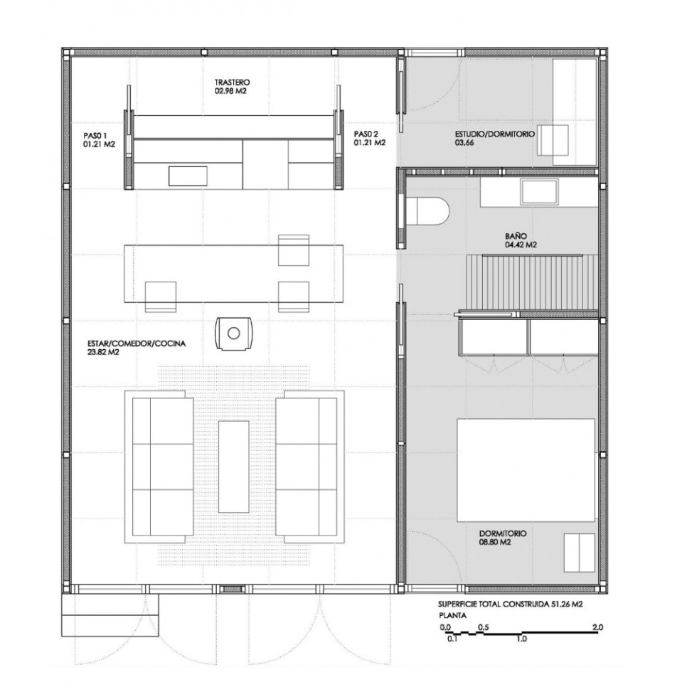
I can understand why the designer would place the heater/stove in the center of the public spaces. For myself, since I live in the sub-tropics, I would have 3 or 4 split unit AC s place in the bedrooms etc. I like the odd little laundry, storage, computer space at the back end of the house. Also I would surround the house with a 10 wide covered veranda. Build it on piers 10 ft high and install my $1500 electric elevator, and Voila!!! easy living for me, the husband, 6 dogs and 2 cats.
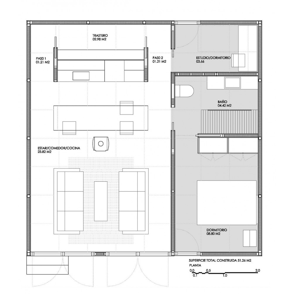
I can understand why the designer would place the heater/stove in the center of the public spaces. For myself, since I live in the sub-tropics, I would have 3 or 4 split unit AC s place in the bedrooms etc. I like the odd little laundry, storage, computer space at the back end of the house. Also I would surround the house with a 10 wide covered veranda. Build it on piers 10 ft high and install my $1500 electric elevator, and Voila!!! easy living for me, the husband, 6 dogs and 2 cats.