Gallery: VolgaDacha by Bureau Bernaskoni

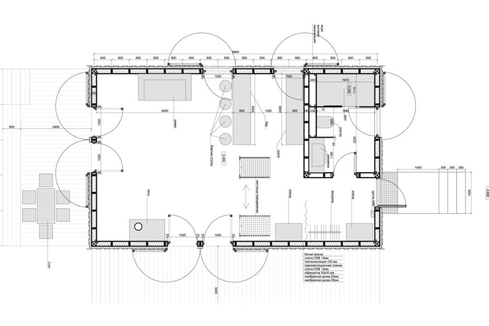
floor plan of VolgaDacha, a small vacation house by Bureau BERNASKONI

lower floor plan