Gallery: A pared-down Palladian villa in Sweden by DinellJohansson

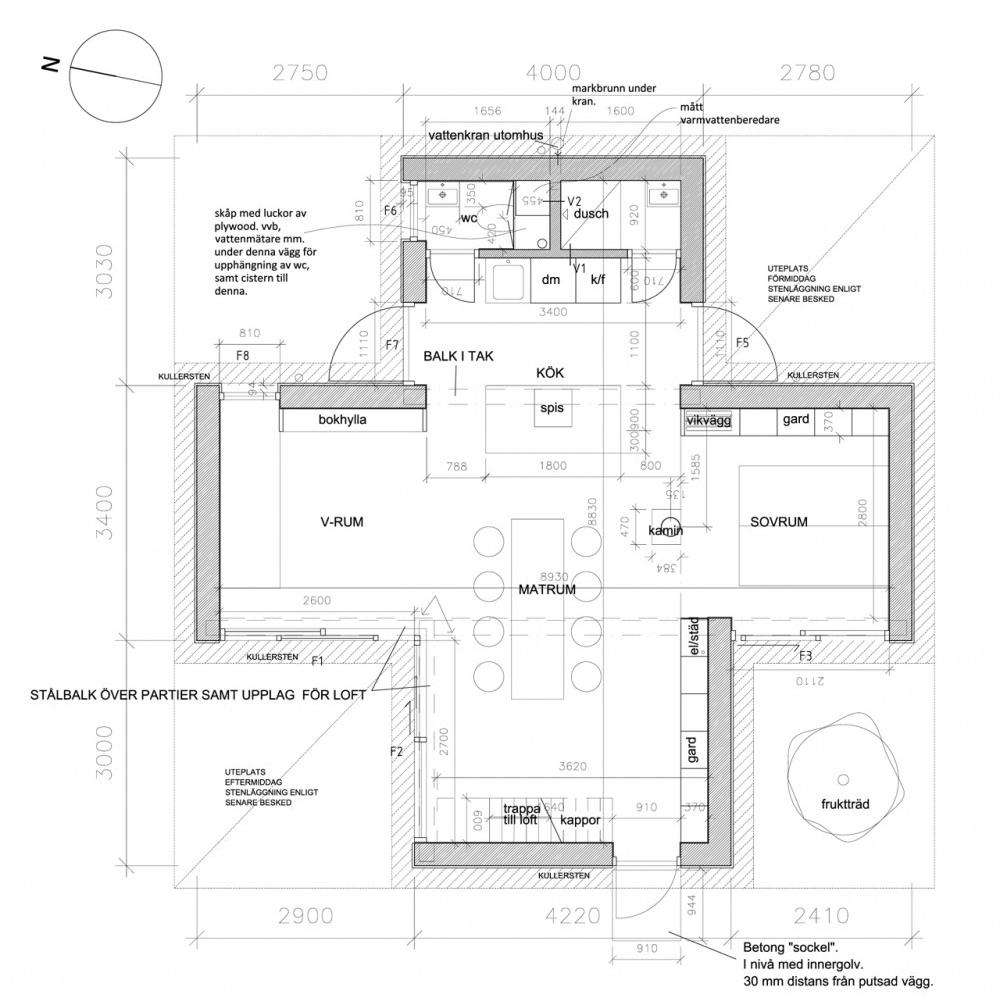
Floor plan of Palladio i Strandbaden by DinellJohansson

floor plan