Gallery: House in Inokashira by Studio NOA

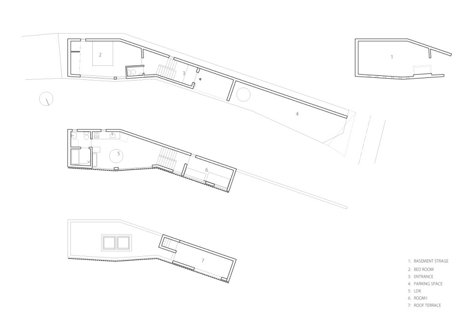
Floor plan of the House in Inokashira by Studio NOA

floor plan