Gallery: Casa T2, a simple copper-clad house in Italy | Antonio Ravalli

Casa T2, a simple copper-clad house with 2 bedrooms in 1,184 sq ft. | www.facebook.com/SmallHouseBliss

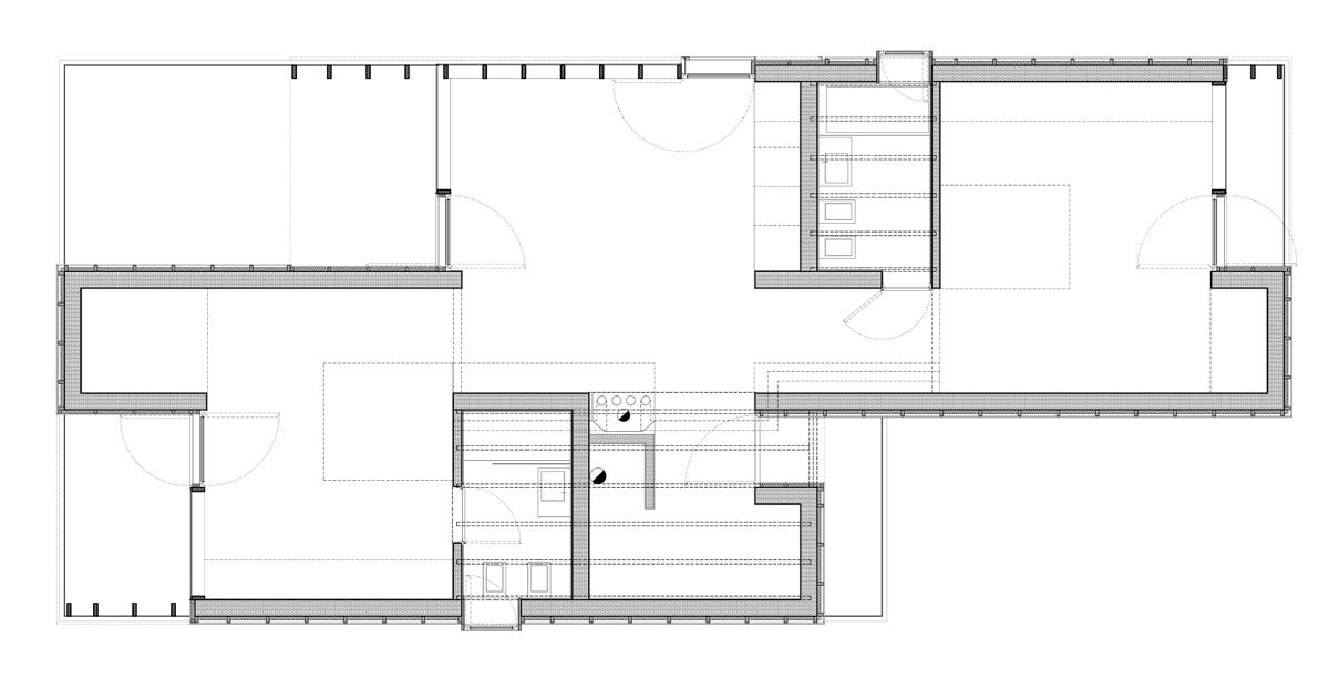
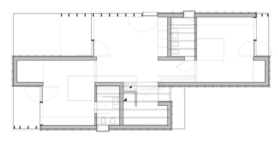
floor plan