Gallery: Haus Bru 1.25, a small barn-like house | SoHo Architektur

Haus Bru 1.25, a small barn-like house with 1 bedroom and a loft (which could be a 2nd bedroom) in 969 sq ft. | www.facebook.com/SmallHouseBliss

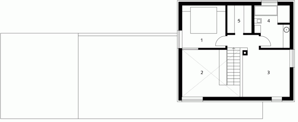
upper floor plan

Photograph by Zooey Braun