Gallery: Net-zero solar laneway house by Lanefab Design/Build

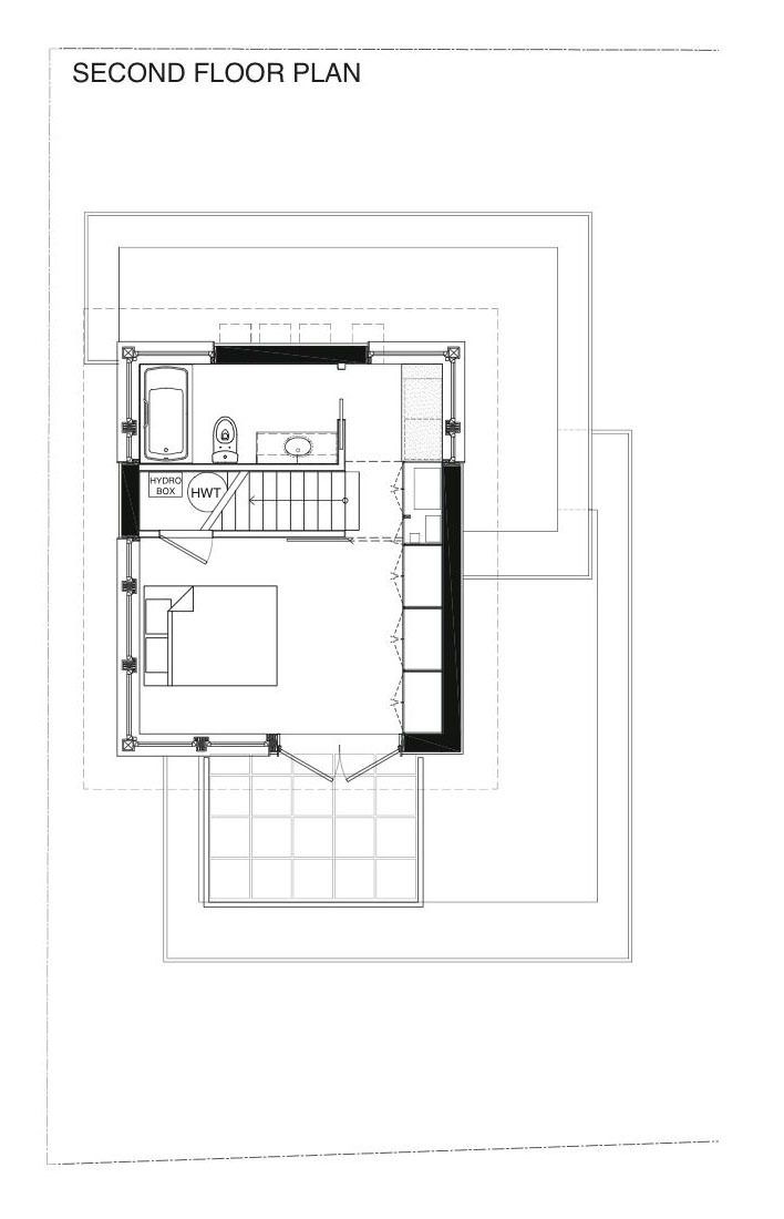
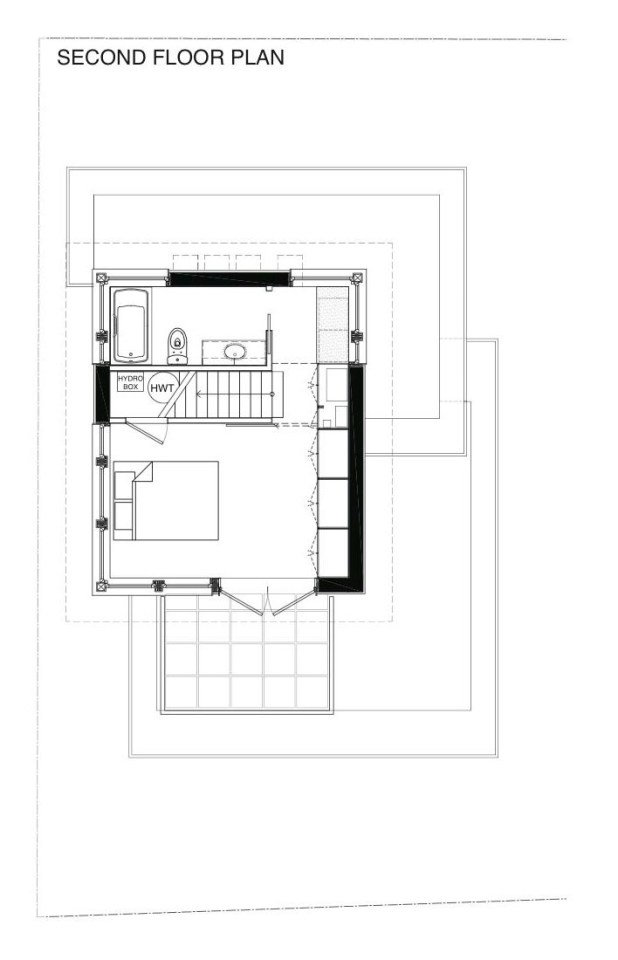
upper floor plan