Gallery: Gunnar’s House | Huus og Heim Arkitektur

Gunnar's House, a small timber frame forest home in Norway. It has 2 bedrooms in 915 sq ft. | www.facebook.com/SmallHouseBliss

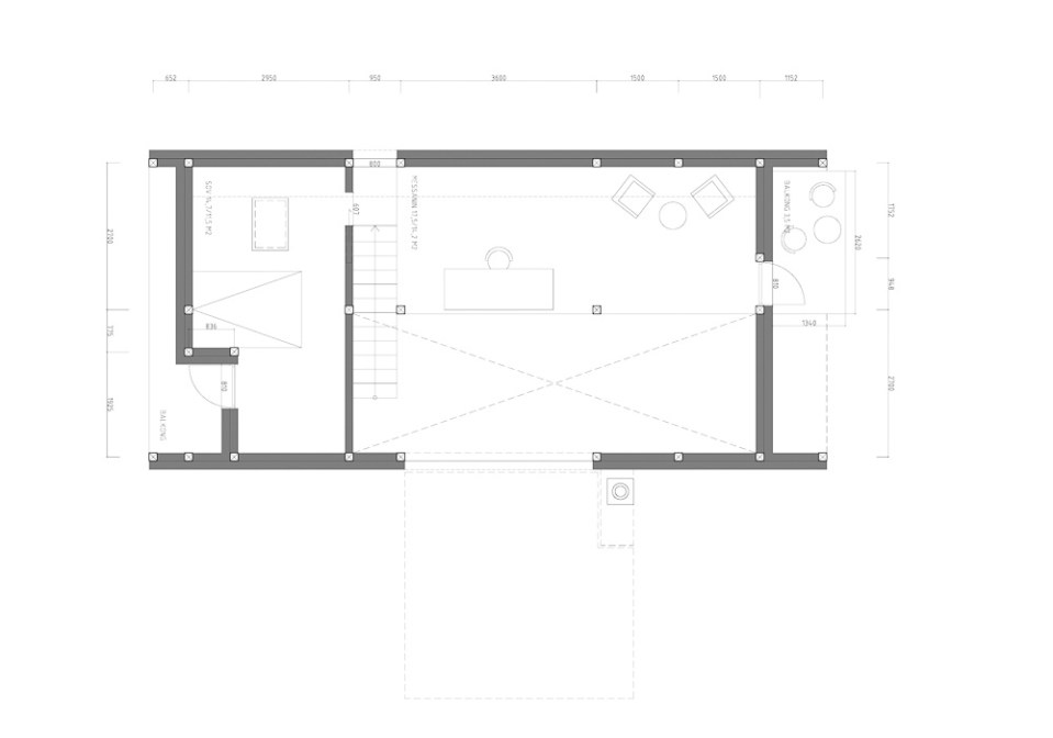
upper floor plan