Gallery: A contemporary family house in Sweden

at 880 × 720 in A contemporary family house in Sweden
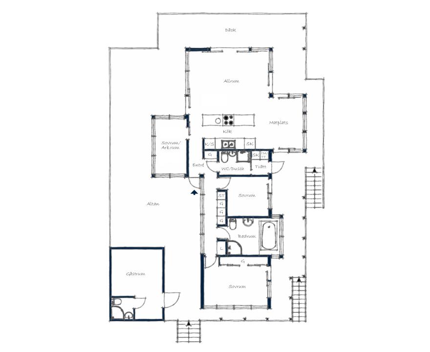
A small house for a family in Sweden with 3 bedrooms in 1,281 sq ft. | www.facebook.com/SmallHouseBliss

floor plan