Gallery: The Shed, a small house in an old blacksmith’s workshop | Richard Peters

The Shed, a former blacksmith's workshop converted into a 2-bedroom home. | www.facebook.com/SmallHouseBliss

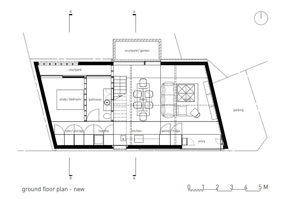
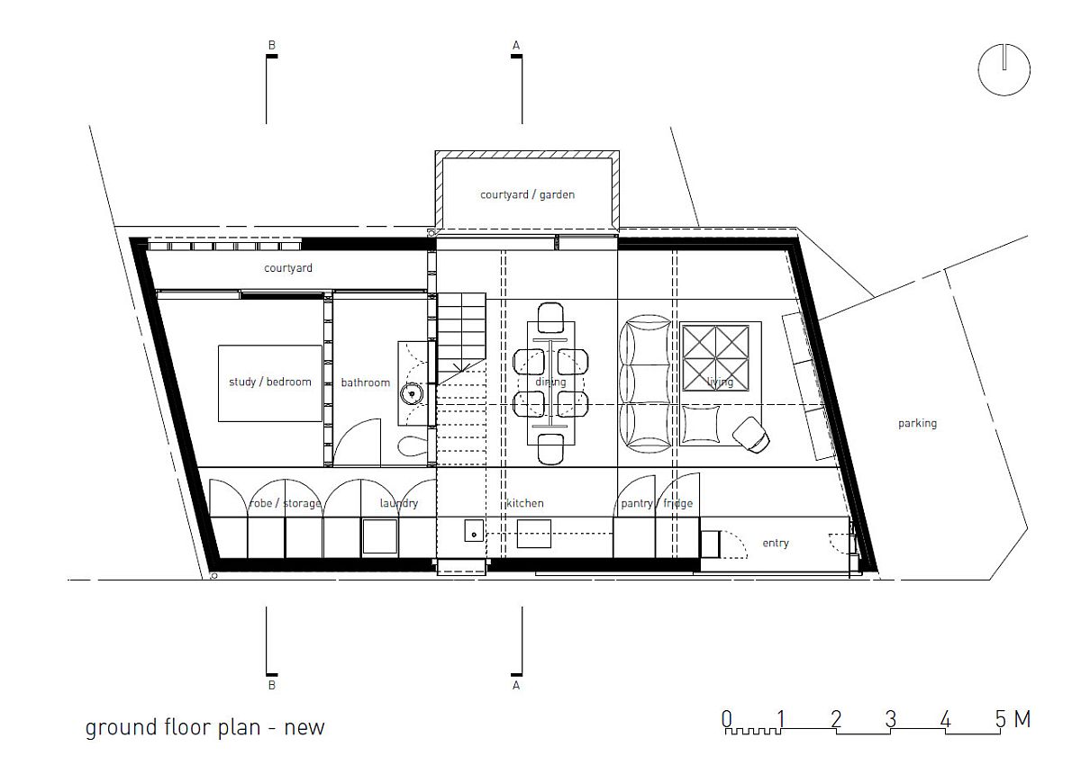
lower floor plan